St. Marys Road, Watford, Hertfordshire, WD18
2 bedroom house for sale
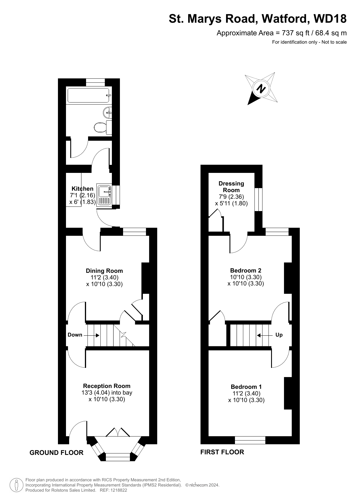
| 737 sq ft (68 sq m)£370,000
Guide PriceKey Features
- Two Double Bedrooms
- Spacious Living Room & Dining Room
- Modern Bathroom
- Dressing Room
- Private Rear Garden
- Walking Distance to Watford Girls' Grammar School
- EPC Rating - D
- Council Tax Band - C
- Approximately 737 Sq Ft
Property Description
The kitchen has direct access to the private garden, the layout provides plenty of space for family meals and entertaining, and there’s a handy utility area for added convenience.
Upstairs, you’ll find two generously sized double bedrooms. The primary bedroom includes a useful additional room, making it an ideal space for a nursery, dressing room, or home office. The second bedroom is equally spacious.
The family bathroom is modern and comfortable. Outside, the well-maintained garden offers plenty of room for outdoor dining.
Situated in a prime location, this property is within easy reach of excellent local schools, including the highly regarded Watford Girls' Grammar School. You'll also benefit from excellent public transport links, nearby parks, shops, and local amenities, all of which contribute to a convenient and desirable lifestyle.
The home is just a short walk from Watford town centre, offering a wide range of shopping and transport options. This includes Main Line services from Watford Junction to London Euston, as well as the Watford Metropolitan Line providing direct access to Baker Street and The City. Additionally, the A41 junction is close by, offering quick access to the M25, with Junctions 19 and 20 connecting to national motorways and major airports.
Additional Information

Watford
"Having been named as the happiest place to live in the UK Watford is definitely a city on the up and the perfect place to live for young professionals and families alike.”
Financing this Property

Local Market Intelligence
Providing data-driven insight into the local residential property market.
Areas Covered by Rolstons Watford

Call Us 01923 775000 | ||||||||||||
|---|---|---|---|---|---|---|---|---|---|---|---|---|
St. Marys Road, Watford, Hertfordshire, WD182 bedroom house for sale £ 370,000 Guide Price![]() 2 Bedrooms / 1 Bathrooms Key Features
The ground floor features two separate and spacious reception rooms, that benefit from charming period fireplaces, creating a warm and welcoming ambiance.<br><br>The kitchen has direct access to the private garden, the layout provides plenty of space for family meals and entertaining, and there’s a handy utility area for added convenience.<br><br>Upstairs, you’ll find two generously sized double bedrooms. The primary bedroom includes a useful additional room, making it an ideal space for a nursery, dressing room, or home office. The second bedroom is equally spacious.<br><br>The family bathroom is modern and comfortable. Outside, the well-maintained garden offers plenty of room for outdoor dining. <br><br>Situated in a prime location, this property is within easy reach of excellent local schools, including the highly regarded Watford Girls' Grammar School. You'll also benefit from excellent public transport links, nearby parks, shops, and local amenities, all of which contribute to a convenient and desirable lifestyle. <br><br>The home is just a short walk from Watford town centre, offering a wide range of shopping and transport options. This includes Main Line services from Watford Junction to London Euston, as well as the Watford Metropolitan Line providing direct access to Baker Street and The City. Additionally, the A41 junction is close by, offering quick access to the M25, with Junctions 19 and 20 connecting to national motorways and major airports. | ||||||||||||
| ||||||||||||
![]() | ||||||||||||
Map & Explore Nearby
What’s your property worth?
If you have decided to sell or let your home or just keen to find out the value of your most important asset, a key starting point is to find out the current market value of your property.

























