Rufford Close, Watford, Hertfordshire, WD17
5 bedroom house for sale
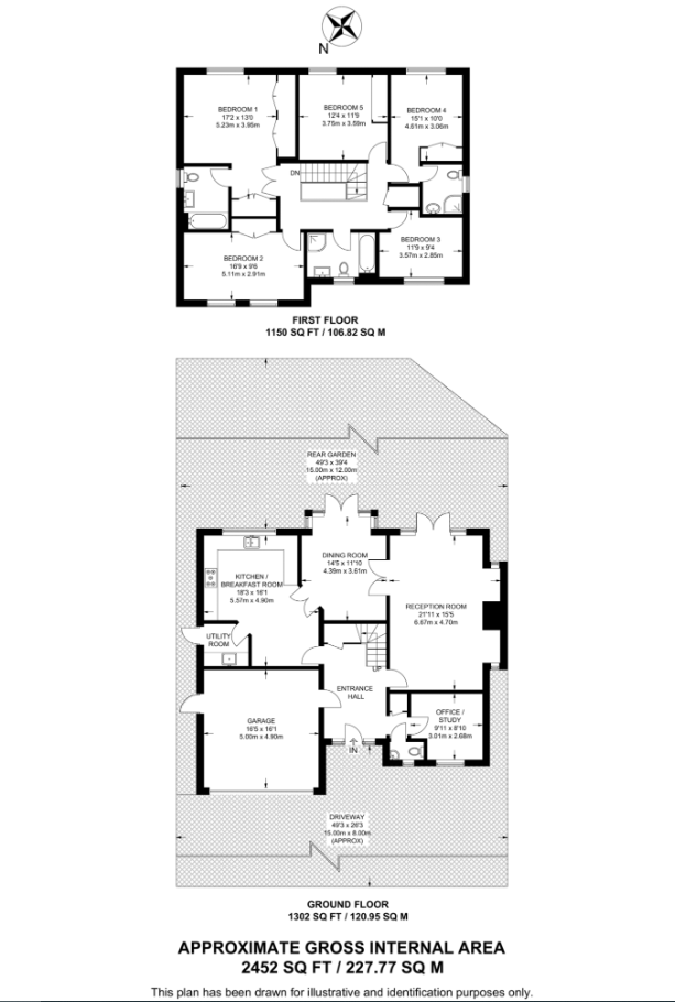
| 2,452 sq ft (228 sq m)£1,245,000
Asking PriceKey Features
- Five spacious double bedrooms
- Driveway parking complemented by a double garage
- Impressive reception room featuring a character Inglenook fireplace
- Generous kitchen/breakfast room, ideal for family living
- Conveniently located close to Watford Junction and the town centre
- Within easy reach of highly regarded local schools
- Private rear garden, perfect for relaxing and entertaining
- Chain free
Property Description
The ground floor comprises a spacious entrance hall, kitchen/breakfast room, utility room, dining room, living room, study, and a guest W/C.
To the first floor is a galleried landing, five double bedrooms, two en-suites and a family bathroom.
Externally, the property benefits from a driveway offering off street parking for two vehicles, a double-width garage and a private rear garden.
Rufford Close enjoys a peaceful residential setting while providing convenient access to Watford town centre, with its wide range of amenities and and excellent transport links, including Watford Junction, as well as the popular Nascot Wood Infant and Junior Schools and the picturesque Cheslyn Gardens.
Additional Information

Watford
"Having been named as the happiest place to live in the UK Watford is definitely a city on the up and the perfect place to live for young professionals and families alike.”
Financing this Property

Local Market Intelligence
Providing data-driven insight into the local residential property market.
Areas Covered by Rolstons Watford

Call Us 01923 775000 | |||||||||||||||||||||||
|---|---|---|---|---|---|---|---|---|---|---|---|---|---|---|---|---|---|---|---|---|---|---|---|
Rufford Close, Watford, Hertfordshire, WD175 bedroom house for sale £ 1,245,000 Asking Price![]() 5 Bedrooms / 3 Bathrooms Key Features
The property offers an abundance of well-proportioned living space on both floors, perfectly suited to a growing family. All bedrooms are generous in size, with two benefitting from en-suite facilities.<br><br>The ground floor comprises a spacious entrance hall, kitchen/breakfast room, utility room, dining room, living room, study, and a guest W/C. <br><br>To the first floor is a galleried landing, five double bedrooms, two en-suites and a family bathroom.<br><br>Externally, the property benefits from a driveway offering off street parking for two vehicles, a double-width garage and a private rear garden.<br> <br>Rufford Close enjoys a peaceful residential setting while providing convenient access to Watford town centre, with its wide range of amenities and and excellent transport links, including Watford Junction, as well as the popular Nascot Wood Infant and Junior Schools and the picturesque Cheslyn Gardens. | |||||||||||||||||||||||
| |||||||||||||||||||||||
![]() | |||||||||||||||||||||||
Map & Explore Nearby
What’s your property worth?
If you have decided to sell or let your home or just keen to find out the value of your most important asset, a key starting point is to find out the current market value of your property.














































