Woolman Road, Watford, Hertfordshire, WD17
3 bedroom house for sale
£855,000
Asking PriceKey Features
- Stunning modern four-bedroom townhouse over three floors
- Located on the sought-after Nascot Grange development
- Short walk to Outstanding Nursery & Junior Schools
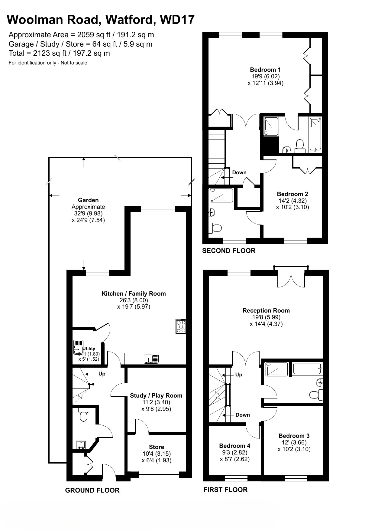
- Kitchen/dining/family room with French doors to private garden
- The house consists of 4 bedrooms with the ability to convert the study/Garage into a 5th bedroom if desired.
- Private rear garden with an Electric Awning with heat and power making the patio area usable space throughout the year
- Off-street parking with driveway
Property Description
On the first floor is a generous 19ft living room with a Juliet balcony, allowing natural light to flood the space. This level also includes two well-proportioned bedrooms and a modern family bathroom.
The second floor is home to the principal bedroom suite, complete with an en-suite bathroom, together with a further bedroom that benefits from its own en-suite shower room, providing excellent accommodation for a growing family or visiting guests.
Externally, the property offers off-street parking to the front and a well-maintained private rear garden, providing a peaceful outdoor space.
The location is exceptionally convenient, with Watford town centre approximately 0.5 miles away, offering a wide range of shops, restaurants and amenities including the Atria Shopping Centre. Watford Junction station is also within easy reach, providing a fast 20-minute journey into London Euston.
The area is also renowned for its excellent schooling, including Parmiter’s School and Watford Grammar School for Boys and Girls, all consistently ranked among the top schools in Hertfordshire. For outdoor recreation, the beautiful Cassiobury Park is nearby, offering woodland walks, sports facilities and a golf course.
Additional Information

Watford
"Having been named as the happiest place to live in the UK Watford is definitely a city on the up and the perfect place to live for young professionals and families alike.”
Financing this Property

Local Market Intelligence
Providing data-driven insight into the local residential property market.
Areas Covered by Rolstons Watford

Call Us 01923 775000 | |||||||||||||||||||||||||||||
|---|---|---|---|---|---|---|---|---|---|---|---|---|---|---|---|---|---|---|---|---|---|---|---|---|---|---|---|---|---|
Woolman Road, Watford, Hertfordshire, WD173 bedroom house for sale £ 855,000 Asking Price![]() 3 Bedrooms / 3 Bathrooms Key Features
The ground floor features a welcoming entrance hall, a convenient downstairs cloakroom/WC, and an impressive open-plan kitchen/dining/family room fitted with high-quality units and appliances. Double French doors open onto the private rear garden, creating a wonderful space for entertaining and everyday family living. The integral garage has been thoughtfully partially converted to create a versatile home office or games room, while still retaining a useful storage area.<br>On the first floor is a generous 19ft living room with a Juliet balcony, allowing natural light to flood the space. This level also includes two well-proportioned bedrooms and a modern family bathroom.<br>The second floor is home to the principal bedroom suite, complete with an en-suite bathroom, together with a further bedroom that benefits from its own en-suite shower room, providing excellent accommodation for a growing family or visiting guests.<br>Externally, the property offers off-street parking to the front and a well-maintained private rear garden, providing a peaceful outdoor space.<br>The location is exceptionally convenient, with Watford town centre approximately 0.5 miles away, offering a wide range of shops, restaurants and amenities including the Atria Shopping Centre. Watford Junction station is also within easy reach, providing a fast 20-minute journey into London Euston.<br>The area is also renowned for its excellent schooling, including Parmiter’s School and Watford Grammar School for Boys and Girls, all consistently ranked among the top schools in Hertfordshire. For outdoor recreation, the beautiful Cassiobury Park is nearby, offering woodland walks, sports facilities and a golf course. | |||||||||||||||||||||||||||||
| |||||||||||||||||||||||||||||
![]() | |||||||||||||||||||||||||||||
Map & Explore Nearby
What’s your property worth?
If you have decided to sell or let your home or just keen to find out the value of your most important asset, a key starting point is to find out the current market value of your property.


























































