Tolpits Lane, Watford, Hertfordshire, WD18
3 bedroom house for sale
£575,000
Asking PriceKey Features
- Chain free
- Semi Detached House
- 3-4 Bedroom
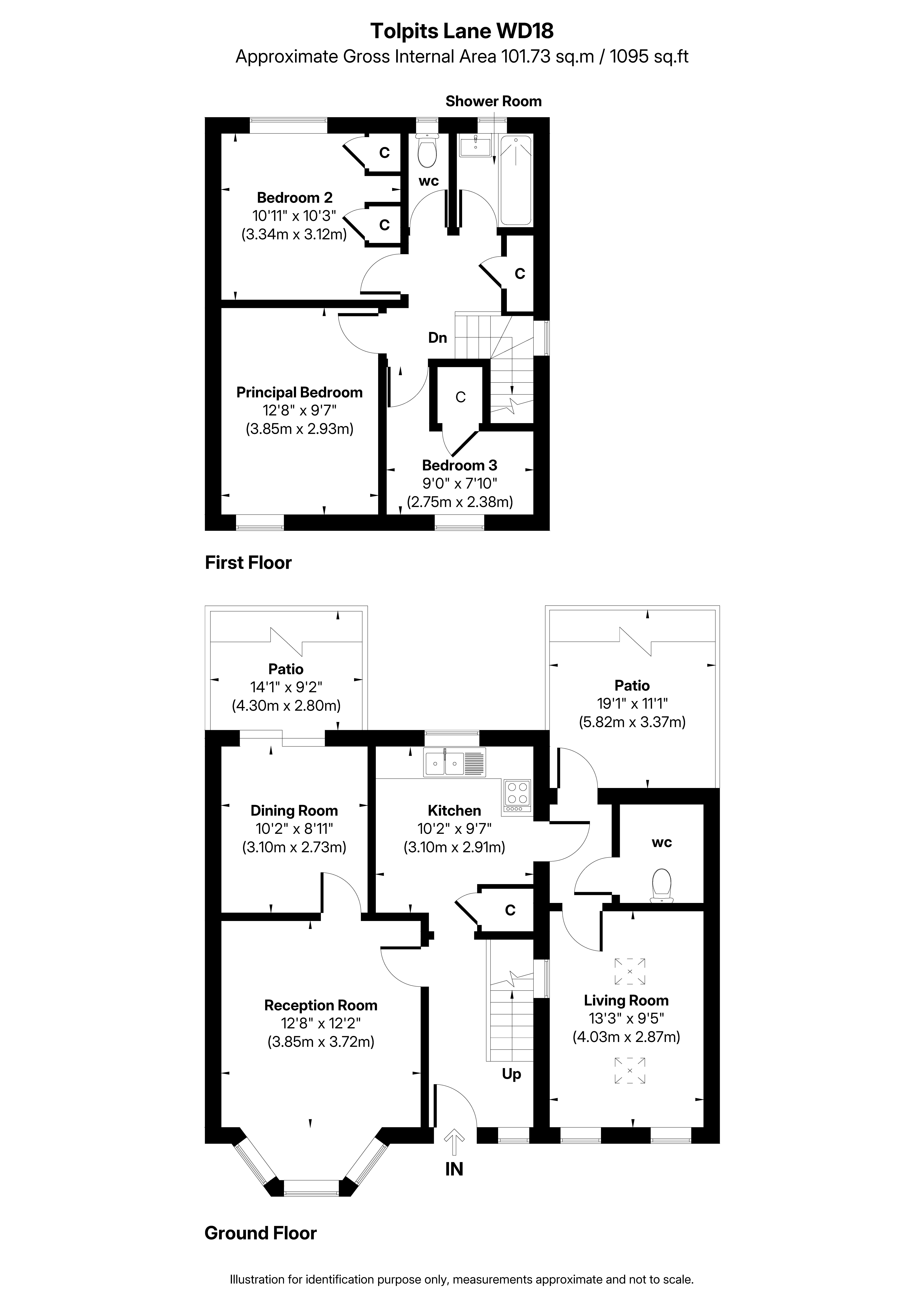
- Extended with further extension potential
- Large rear garden with rear access
- Downstairs WC
- Transport Links into Watford Town Centre
- Catchment Area For Highly Regarded Local Schools
Property Description
To the rear, the property boasts a substantial garden with the added benefit of rear access—perfect for outdoor entertaining, family use, or future landscaping potential. Internally, the ground floor is further complemented by a convenient downstairs WC.
Ideally positioned, the home benefits from excellent transport links into Watford Town Centre, providing easy access to a wide range of amenities, shops, and rail connections, making it perfectly suited for commuters and families alike.
Additional Information

Watford
"Having been named as the happiest place to live in the UK Watford is definitely a city on the up and the perfect place to live for young professionals and families alike.”
Financing this Property

Local Market Intelligence
Providing data-driven insight into the local residential property market.
Areas Covered by Rolstons Watford
Call Us 01923 775000 | ||||||||||||||||
|---|---|---|---|---|---|---|---|---|---|---|---|---|---|---|---|---|
Tolpits Lane, Watford, Hertfordshire, WD183 bedroom house for sale £ 575,000 Asking Price![]() 3 Bedrooms / 2 Bathrooms Key Features
The property has been thoughtfully extended, creating generous living areas while still offering excellent scope for further extension (subject to the necessary planning permissions), allowing any incoming buyer to truly make the home their own.<br><br>To the rear, the property boasts a substantial garden with the added benefit of rear access—perfect for outdoor entertaining, family use, or future landscaping potential. Internally, the ground floor is further complemented by a convenient downstairs WC.<br><br>Ideally positioned, the home benefits from excellent transport links into Watford Town Centre, providing easy access to a wide range of amenities, shops, and rail connections, making it perfectly suited for commuters and families alike. | ||||||||||||||||
| ||||||||||||||||
![]() | ||||||||||||||||
Map & Explore Nearby
What’s your property worth?
If you have decided to sell or let your home or just keen to find out the value of your most important asset, a key starting point is to find out the current market value of your property.
































