Cromer Road, Watford, Hertfordshire, WD24
2 bedroom house for sale
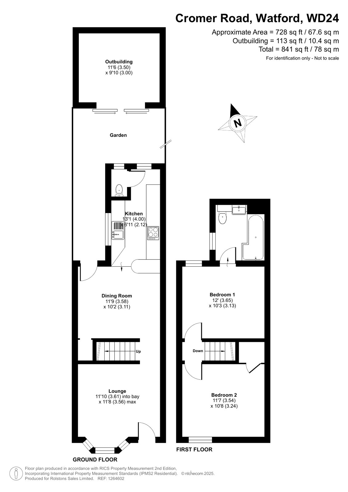
| 841 sq ft (78 sq m)£425,000
Guide PriceKey Features
- Two-bedroom Victorian terraced home
- Two reception rooms
- Downstairs WC
- Kitchen with breakfast bar
- Beautifully styled throughout
- Outbuilding (113 Sq Ft)
- Enclosed rear garden
- Located on a quiet no-through road
- Walking distance to Watford Junction
- EPC rating:
- Council tax band: C
- Approximately 841 Sq Ft
Property Description
Upstairs, the property boasts two well-proportioned double bedrooms. The principal bedroom is particularly spacious and leads to the family bathroom, which is stylishly appointed.
Outside, the beautifully enclosed rear garden is mainly laid to lawn, offering plenty of space for outdoor enjoyment. The property also benefits from an outbuilding, ideal for additional storage or potential use as a home office or gym.
Conveniently positioned, it is within a short walk to Watford Junction Station, local amenities, and well-regarded schools. Ideal for a family, this property comes highly recommended for viewings. With excellent transport links, local amenities, and green spaces nearby.
Additional Information

Watford
"Having been named as the happiest place to live in the UK Watford is definitely a city on the up and the perfect place to live for young professionals and families alike.”
Financing this Property

Local Market Intelligence
Providing data-driven insight into the local residential property market.
Areas Covered by Rolstons Watford

Call Us 01923 775000 | |||||||||||||||||||
|---|---|---|---|---|---|---|---|---|---|---|---|---|---|---|---|---|---|---|---|
Cromer Road, Watford, Hertfordshire, WD242 bedroom house for sale £ 425,000 Guide Price![]() 2 Bedrooms / 1 Bathrooms Key Features
Stepping inside, the welcoming entrance leads to a bright and airy living room with a feature bay window, allowing natural light to flood the space. A separate dining room provides a cosy setting for entertaining or family meals and flows seamlessly into the well-equipped kitchen, complete with a breakfast bar for casual dining. Just off the kitchen, a ground-floor guest cloakroom/WC adds convenience for modern family living. A door leads out to the rear garden, offering easy access to outdoor relaxation and entertaining space.<br><br>Upstairs, the property boasts two well-proportioned double bedrooms. The principal bedroom is particularly spacious and leads to the family bathroom, which is stylishly appointed. <br>Outside, the beautifully enclosed rear garden is mainly laid to lawn, offering plenty of space for outdoor enjoyment. The property also benefits from an outbuilding, ideal for additional storage or potential use as a home office or gym.<br><br>Conveniently positioned, it is within a short walk to Watford Junction Station, local amenities, and well-regarded schools. Ideal for a family, this property comes highly recommended for viewings. With excellent transport links, local amenities, and green spaces nearby. | |||||||||||||||||||
| |||||||||||||||||||
![]() | |||||||||||||||||||
Map & Explore Nearby
What’s your property worth?
If you have decided to sell or let your home or just keen to find out the value of your most important asset, a key starting point is to find out the current market value of your property.






































