Key Features
- Four Bedrooms
- Two Spacious Reception Rooms
- Off Street Parking
- Private Garden
- Sylish Kitchen
- Steam Room
- Hot Tub Bath
- Unfurnished
- EPC - D
Property Description
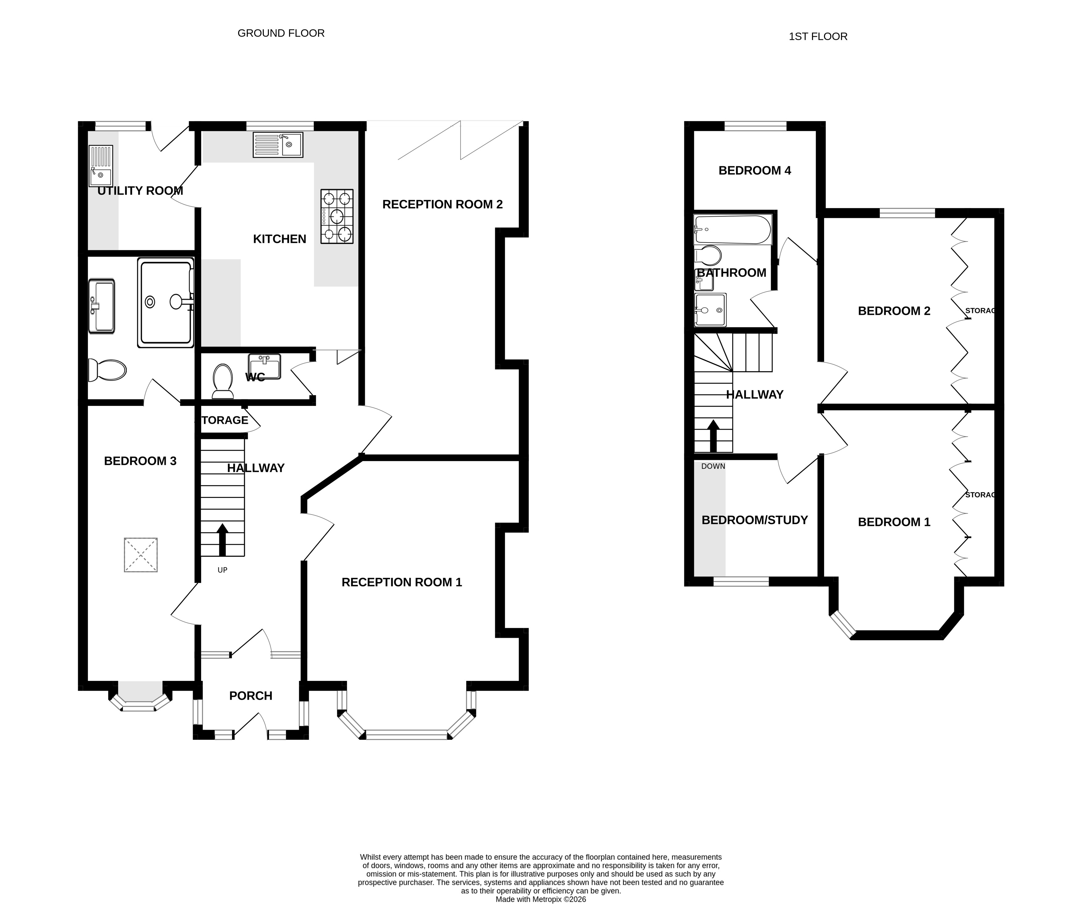
Upstairs, the property offers three bedrooms, two with built-in storage, a study, and a family bathroom complete with a jacuzzi bath.
Council Tax - £2,854.14 (Band E)
Additional Information

Watford
"Having been named as the happiest place to live in the UK Watford is definitely a city on the up and the perfect place to live for young professionals and families alike.”

Call Us 01923 775000 | ||||||||||||||||
|---|---|---|---|---|---|---|---|---|---|---|---|---|---|---|---|---|
Tudor Avenue, Watford, Hertfordshire, WD244 bedroom house to rent £ 3,100 Monthly![]() 4 Bedrooms / 2 Bathrooms Key Features
This well-presented and versatile property comprises a porch, downstairs W/C, two reception rooms, and a stylish kitchen leading to a separate utility room, with access to the garden from both the reception room and utility. The ground floor also benefits from an additional bedroom with an en suite featuring a steam room.<br><br>Upstairs, the property offers three bedrooms, two with built-in storage, a study, and a family bathroom complete with a jacuzzi bath.<br><br>Council Tax - £2,854.14 (Band E) | ||||||||||||||||
| ||||||||||||||||
![]() | ||||||||||||||||
Map & Explore Nearby
What’s your property worth?
If you have decided to sell or let your home or just keen to find out the value of your most important asset, a key starting point is to find out the current market value of your property.

































