Key Features
- Two Double Bedrooms Plus Study/Bedroom
- End of Terrace
- Well Maintained Garden
- Built-In Wardrobes
- Unfurnished
- Garage
- Driveway
- Fitted Kitchen with Appliances
- Zero Deposit Guarantee Available
- EPC - D
Property Description
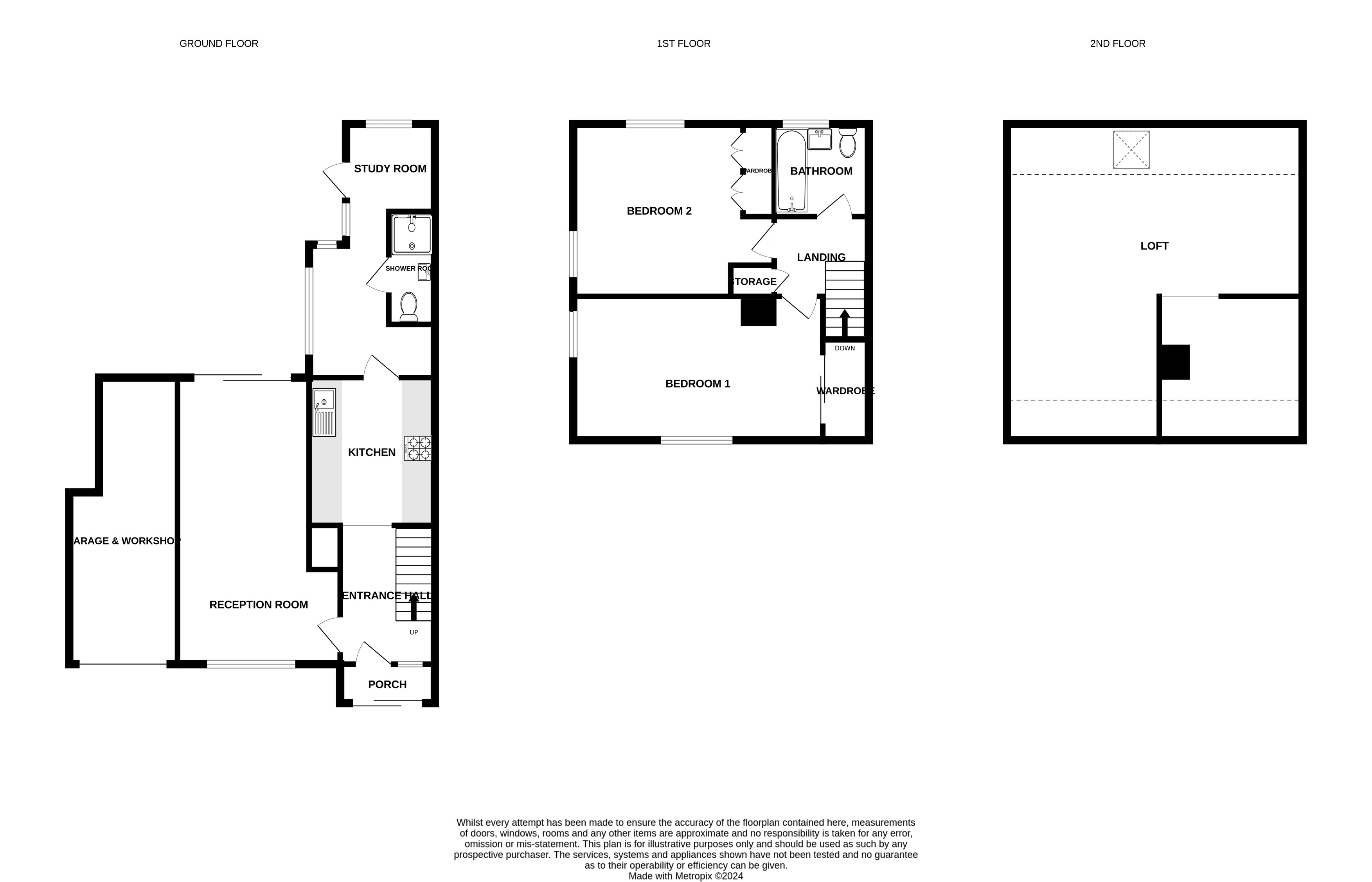
On the first floor are two double bedrooms with fitted wardrobes, a storage cupboard and a family bathroom suite. The loft is fully boarded to be utilised for further ample storage space.
The property further benefits from a driveway for two cars.
Valley Rise is situated in Garston and provides excellent access to the A405, A41 and M1. Local shops, Leavesden Studios, and local schools are nearby.
Council Tax - £2,236.00 (Band D)
Additional Information

Watford
"Having been named as the happiest place to live in the UK Watford is definitely a city on the up and the perfect place to live for young professionals and families alike.”

Call Us 01923 775000 | ||||||||||||||||
|---|---|---|---|---|---|---|---|---|---|---|---|---|---|---|---|---|
Valley Rise, Watford, Hertfordshire, WD252 bedroom house to rent £ 1,850 Monthly![]() 2 Bedrooms / 2 Bathrooms Key Features
Comprising an entrance porch opening up with an entrance stairway leading to a fully fitted kitchen with appliances, a downstairs study room with a shower room, and a reception room with sliding doors leading to a private rear and well-maintained garden. <br><br>On the first floor are two double bedrooms with fitted wardrobes, a storage cupboard and a family bathroom suite. The loft is fully boarded to be utilised for further ample storage space. <br><br>The property further benefits from a driveway for two cars. <br><br>Valley Rise is situated in Garston and provides excellent access to the A405, A41 and M1. Local shops, Leavesden Studios, and local schools are nearby. <br><br>Council Tax - £2,236.00 (Band D) | ||||||||||||||||
| ||||||||||||||||
![]() | ||||||||||||||||
Map & Explore Nearby
What’s your property worth?
If you have decided to sell or let your home or just keen to find out the value of your most important asset, a key starting point is to find out the current market value of your property.
































